
24小時服務熱線:135-0317-6066
Product display
Hot News
Contact Us
河北省獻縣滄恒環保設備廠
聯系人:王經理
電 話:0317-4641055
手 機:135-0317-6066
郵 箱:cangheng@qq.com
地 址:獻縣陳莊鎮經濟開發區



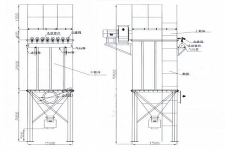
一、簡介
該除塵器采用高壓(0.5~0.7Mpa)大流量脈沖閥逐條濾袋噴吹清灰的技術,能夠從大量超細粉(顆粒≤5μm,含量≥70%以上)的氣體中,把99.9%以上的粉塵收集下來,排放濃度低于60mg/Nm3,廣泛應用于水泥行業的粉塵治理,該除塵器在化工、冶金、鋼鐵、電力等行業也有較好的應用前景。除塵器本體采用全鋼結構設計,外客采用LBY型輕質巖棉板雙層保溫。冷壓成型工藝花板,既增加強度又保證了設備質量。根據工作環境選擇不同的濾料及其過濾風速。

二、技術參數
性能\型號 | GMC60-2 | GMC60-3 | GMC60-4 | GMC60-5 | GMC70-5 |
處理風量m3/h | 10000~16000 | 15000~25000 | 20000~33000 | 26000~41000 | 32000~48000 |
總過濾面積m2 | 184 | 267 | 368 | 459 | 536 |
過濾風速m/min | 0.91~1.45 | 0.91~1.45 | 0.91~1.51 | 0.91~1.49 | 0.94~1.49 |
濾袋數量(條) | 120 | 180 | 240 | 300 | 350 |
阻力Pa | ≤1200 | ||||
入口濃度g/m3n | ≤200 | ||||
出口濃度mg/m3n | ≤60 | ||||
噴吹壓力(MPa) | 0.5-0.7 | ||||
承受壓力Pa | 9000 | ||||
脈沖閥數量 | 10 | 15 | 20 | 25 | 25 |
耗氣量m3/min | 0.65 | 1.01 | 1.37 | 1.73 | 2.09 |
保溫面積m2 | 44 | 50 | 82 | 96 | 112 |
設備重量 kg | 6600 | 8250 | 10500 | 13250 | 15500 |
所耗功率(KW) | 2.2 | 2.2 | 5.2 | 5.2 | 5.2 |
表二
GMC70-6 | GMC70-7 | GMC70-8 | GMC60-2×5 | GMC70-2×5 | |
處理風量m3/h | 38000-57000 | 44000-67000 | 51000-77000 | 55000-82000 | 64000-96000 |
總過濾面積m2 | 643 | 750 | 857 | 918 | 1070 |
過濾風速m/min | 1.00-1.49 | 0.98-1.48 | 0.99-1.50 | 1.00-1.49 | |
濾袋數量(條) | 420 | 490 | 560 | 600 | 700 |
阻力Pa | ≤1200 | ||||
入口濃度g/m3n | ≤200 | ||||
出口濃度mg/m3n | ≤60 | ||||
噴吹壓力(MPa) | 0.5-0.7 | ||||
承受壓力Pa | 9000 | ||||
脈沖閥數量 | 30 | 35 | 40 | 50 | 50 |
耗氣量m3/min | 2.08 | 2.10 | 2.10 | 2.10 | 2.10 |
保溫面積m2 | 125 | 138 | 153 | 185 | 210 |
設備重量 kg | 17500 | 20500 | 23500 | 25500 | 29800 |
所耗功率(KW) | 5.2 | 8.1 | 9.7 | 10.4 | 10.4 |
備注:以上所有技術參數僅供參考,如有更改不另行通知。