
24小時服務熱線:135-0317-6066
Product display
Hot News
Contact Us
河北省獻縣滄恒環保設備廠
聯系人:王經理
電 話:0317-4641055
手 機:135-0317-6066
郵 箱:cangheng@qq.com
地 址:獻縣陳莊鎮經濟開發區



一、簡介
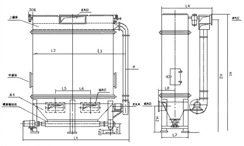
LFS-Ⅰ型雙層布袋機械反吹除塵器是一種八十年代的新型除塵器,是采用方形箱體機械反吹風除塵器,具有結構緊湊、體積小、處理風量大、節約能源、濾袋壽命長、換袋方便、操作簡便、維護工作量小的優點。

LFS-Ⅰ型雙層布袋機械反吹除塵器可廣泛應用于冶金、鑄、噴砂、化工、機械、木材、糧食、礦山、建材、耐火、工礦加工的含塵氣體凈化。
這種除塵器對舊脈沖袋式除塵器壓縮空氣氣源不足,氣壓低油水分離不凈的,不能正常使用致使濾袋無法清灰造成除塵器阻塞失靈的,維修不好的,可用來改裝。加大過濾面積,我廠可發減速風機,吹風管等電除塵器配件,去人改裝或代圖本單位改裝。
二、技術參數
型號規格 | 袋數(條) | 過濾面積(m2) | 處理風量(m3/時) | 阻力(公斤/米2) | 過濾 | 效率(%) | 外形 尺 寸 |
LFS-72 | 30 | 72 | 4300-12960 | 30-90 | 1-3 | 99.5 | 2290×1678×4100 |
LFS-85 | 36 | 85 | 5100-15300 | 30-90 | 1-3 | 99.5 | 2620×1678×4100 |
LFS-115 | 48 | 115 | 6900-20700 | 30-90 | 1-3 | 99.5 | 3460×1678×4100 |
LFS-144 | 60 | 144 | 8640-25920 | 30-90 | 1-3 | 99.5 | 4300×1678×4100 |
備注:以上所有技術參數僅供參考,如有更改不另行通知。